Wir befinden uns hier im schönen Nordrhein-Westfalen. Unser Grundstück befindet sich in der Stadt Herzogenrath (StädteRegion Aachen), genauer gesagt im Stadtteil Merkstein. Die Erschließung des Neubaugebiets hat etliche Jahre Anlaufzeit gebraucht und soll nun im April 2020 endlich abgeschlossen sein und zur Bebauung freigegeben werden. Einerseits kann es uns nicht schnell genug gehen, damit wir endlich loslegen können und andererseits sind wir froh, dass noch ein kleines Zeitpuffer da ist, denn es sind so unheimlich viele Dinge zu erledigen, zu planen, zu kalkulieren und irgendwie hat man ständig das Gefühl etwas vergessen zu haben.

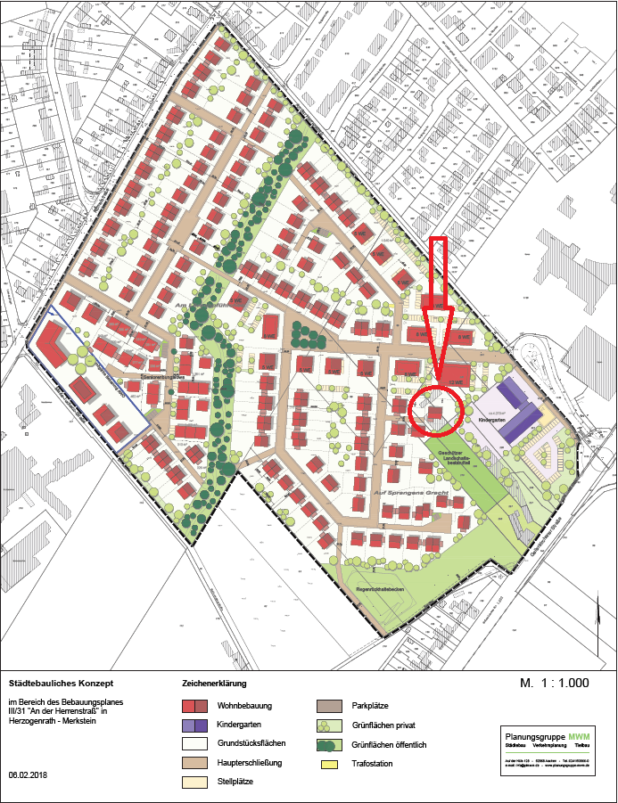
Im Moment sieht es noch nicht nach wirklich viel aus, aber der Bebauungsplan lässt doch erahnen, wie es einmal aussehen wird. Und dort im markierten Kreis wird unser neues Haus einmal stehen.

Mittlerweile ist die alte Zementfabrik abgerissen (auf dem ersten Bild noch durch einen Bauzaun vom Rest des Baugebietes abgetrennt) und das Gelände nun plan und frei von jeglichem Bauschutt. Noch sind die Baustraßen nicht angelegt, da das schlechte Wetter der letzten Zeit zu Verzögerungen im Zeitplan geführt hat.
______________________________________________________________________________________________________________________________





